【初期費用分割払い可】人気マンションに空きが出ました☆ - 岡山県岡山市北区駅元町の賃貸マンション

賃貸

【初期費用分割払い可】人気マンションに空きが出ました☆ - 岡山県岡山市北区駅元町の賃貸マンション

プレサンスロジェ岡山駅元町

賃貸 住居 マンション バス・トイレ別ネット無料都市ガス
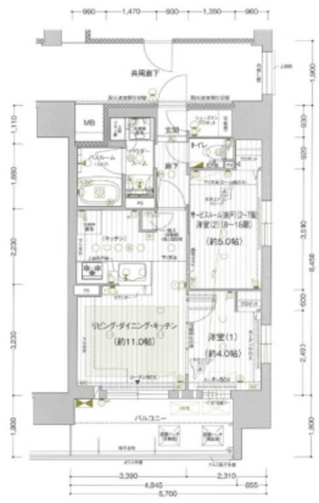
間取り図

11階/2LDK(48.16m²)
12.713万円 +管理費 10,870円
0ヶ月 20万円

お気軽に問い合わせください!

この物件のお問い合わせ番号:YW-323626

お気軽に問い合わせください!

この物件のお問い合わせ番号:YW-323626

おすすめポイント

【初期費用分割払い可】人気マンションに空きが出ました☆

お車でご来店の際は、店舗前駐車場もしくは、周辺のコインパーキングをご利用いただければ、弊社の方でご精算させていただきます。

お部屋のポイント

基本情報

所在地 岡山県岡山市北区駅元町

沿線・最寄り駅JR山陽新幹線(岡山)徒歩4分 岡山電気軌道東山本線(岡山駅前)徒歩7分
賃料 12.713万円
管理費 10,870円
敷金/礼金 0ヶ月  20万円
駐車場 なし
住宅保険料 -
間取り 2LDK
建物構造 鉄筋コンクリート(RC)造
階数 11階
開口向き
築年月 2023年4月 築年数3年
入居状況/入居日 空室/要相談
取引態様 仲介
情報更新日 2025年12月05日
次回更新日 次回更新日は情報更新日の2週間以内
YWコード YW-323626
CMコード 937962-1104

設備

  • オートロックオートロック
  • バストイレ別バストイレ別
  • 独立洗面台独立洗面台
  • ペット相談可ペット相談可
  • エアコンエアコン
  • 室内洗濯機置き場室内洗濯機置き場
  • 洗浄便座洗浄便座
  • 宅配ボックス宅配ボックス
洗面・バス・トイレ 独立洗面台、シャンプードレッサー、シャワー、追い焚き機能、浴室乾燥機、シャワー付きトイレ、室内洗濯機置場、バストイレ別、トイレ、洗面所独立
キッチン ガスコンロ可、カウンターキッチン、システムキッチン
セキュリティ オートロック、TVドアホン、宅配BOX、防犯カメラ
情報設備・回線 BSアンテナ
部屋の特徴 バルコニー、全居室フローリング
収納 クローゼット、下駄箱
冷暖房 床暖房
共用部 エレベーター、駐輪場
その他 都市ガス、無線LAN、3口以上コンロ、浴室暖房、2階以上、二人入居可、インターネット無料、IT重説 対応物件

周辺環境

  • 小学校まで6分
  • 中学校まで15分
  • 役所まで19分
  • 郵便局まで5分
  • 図書館まで14分
周辺環境を地図で確認する

取扱店舗

岡山中央店

TEL:
086-899-8998
住所:
岡山県岡山市北区田町1丁目3-1
アクセス:
駐車場:
営業時間:
[平日・土曜日]10:00~17:00
[日曜日・祝日]10:00~17:00
定休日:
火曜日
免許番号:
国土交通大臣(2)第9113号

お気軽に問い合わせください!

この物件のお問い合わせ番号:YW-323626

この物件をシェアする

この物件にお問い合わせ
お問い合わせ内容を選択してください



* 印が付いている項目は必ず入力してください。

ご質問の内容



*お名前  
*ご連絡先

メールアドレスと電話番号を入力してください。もしくは、どちらかを入力してください

 
 
一般固定電話(10桁)および携帯電話(11桁)のみとなります
入居予定日

「決まっている」と選択された方は、入居予定日の入力お願いします。


 
来店希望日 ※12月17日(水)は社内行事のため、広島店舗の営業時間を10時~12時(最終受付は10時30分まで)、また、岡山店舗は臨時休業といたします。 ※広島店舗は2025年12月26日(金)~2026年1月3日(土)まで、岡山店舗は2025年12月26日(金)~2026年1月4日(日)まで冬季休業いたします。 ※GW/夏季/年末年始 長期休業有り
※各店舗の営業時間をご確認のうえご入力ください
*個人情報の取扱いに関する同意書

上記とプライバシーポリシーをご確認いただき、同意いただいた場合はチェックボックスにチェックを入れてください。


※個人情報の取扱いに同意いただけない場合は、お問合せを受付けることができません。

備考欄


この物件を見た人におすすめの物件

  1. 津島福居戸建て 法界院駅 徒歩16分 9.5万円 2LDK/81.52m2
  2. SFCビル野田 9万円 3LDK/86.18m2
  3. グランドソレイユ A棟 庭瀬駅 徒歩18分 4.8万円 (+管5,000円) 1LDK/33.39m2
  4. ルミエール厚生町 大元駅 徒歩10分 8.3万円 (+管7,000円) 3LDK/65.25m2
  5. メゾン・ベル・フルール 7.1万円 (+管4,500円) 1LDK/43.74m2
  6. グレースヴィラ西崎 8.4万円 (+管7,000円) 1LDK/44.19m2
  7. GRANDTIC 下伊福 6.9万円 (+管5,000円) 1LDK/32.17m2
  8. サンシャインヒルズ 6.95万円 (+管4,100円) 2LDK/58.64m2
  9. サンシャインヒルズ 6.75万円 (+管4,100円) 2LDK/58.64m2
  10. エスペランザ 高島駅 徒歩4分 5.3万円 (+管3,000円) 1K/27.32m2
  11. エスペランザ 高島駅 徒歩4分 5.2万円 (+管3,000円) 1K/27.32m2
  12. GRANDTIC 西大寺(グランティック サイダイジ) 西大寺駅 徒歩12分 5.8万円 (+管3,000円) 1LDK/40.58m2
  13. Imperatore(インペラトーレ) 庭瀬駅 徒歩6分 7.5万円 (+管5,000円) 2LDK/56.30m2
  14. REGALEST 十日市(レガリスト トウカイチ) 清輝橋駅 徒歩22分 5.1万円 (+管3,000円) 1K/26.76m2
  15. ラシュレ大元 大元駅 徒歩15分 12万円 (+管5,000円) 2LDK/56.46m2
  16. 8Leaf大元 大元駅 徒歩2分 7.4万円 (+管6,000円) 1LDK/35.10m2
  17. プラッツ・ユーたかまつ 備中高松駅 徒歩12分 4.6万円 (+管4,000円) 1K/33.56m2
  18. イルクオーレ 6.6万円 (+管5,000円) 1K/33.50m2
  19. クレール C棟 大安寺駅 徒歩7分 8.95万円 (+管6,000円) 2LDK/53.22m2
  20. テ・フィティ 備前西市駅 徒歩7分 5.6万円 (+管6,000円) 1K/30.03m2
  21. La peinture 高島駅 徒歩18分 9.2万円 (+管6,500円) 2LDK/60.78m2
  22. La peinture 高島駅 徒歩18分 9.4万円 (+管6,500円) 2LDK/60.78m2
  23. メゾン一刻 瀬戸駅 徒歩15分 5.85万円 (+管3,500円) 1LDK/50.13m2
  24. GRANDTIC リゲルA(グランティック リゲル エー) 5.8万円 (+管3,000円) 1LDK/30.93m2
  25. シンフォニアⅡ 10.2万円 (+管6,000円) 2LDK/63.61m2
  26. レジデンス上道 壱番館 上道駅 徒歩2分 5.7万円 (+管3,500円) 1LDK/44.98m2
  27. S-RESIDENCE表町 西大寺町駅 徒歩1分 6.85万円 (+管5,000円) 1K/24.35m2
  28. Le Cube駅前町 岡山駅 徒歩5分 7.1万円 (+管6,000円) 1K/28.11m2
  29. shine(シャイン) 5.1万円 (+管5,000円) 1K/30.83m2
  30. ビラ メゾン 妹尾駅 徒歩20分 10.7万円 (+管7,000円) 2LDK/67.53m2
  31. ビラ メゾン 妹尾駅 徒歩20分 8万円 (+管7,000円) 1LDK/42.81m2
  32. プレサンスロジェ岡山駅元町 岡山駅 徒歩4分 12.713万円 (+管10,870円) 2LDK/48.16m2

最近見た物件

もっと表示する

友だち登録済みの方はこちら

この物件を
LINEで問合せする

LINE友だち登録画面が出てきたら未登録です
下のボタンから問合せください

友だち未登録のかたはこちら

LINE登録をして問合せする