エイトバレー43平和大通り
賃貸
住居
マンション
南向きバス・トイレ別都市ガス
この物件を見た人におすすめの物件
-
カーサ デル リオ
江波駅 徒歩20分
5.2万円
(+管3,800円)
1K/30.96m2
-
メゾンド山﨑
2.5万円
1DK/22.80m2
-
トゥレスエストレア
横川駅 徒歩13分
7万円
(+管3,000円)
1LDK/41.49m2
-
アクアシティ舟入中町
舟入本町駅 徒歩4分
5.9万円
(+管5,000円)
1K/29.99m2
おすすめポイント
平和大通り沿いの新築マンション!無料インターネット導入!中心部まで徒歩圏内!スーパー・コンビニ等も充実☆お問い合わせは良和ハウスまで!
お部屋のポイント
基本情報
| 沿線・最寄り駅 | JR山陽本線(広島)徒歩19分 広島電鉄 皆実線(比治山下)徒歩8分 |
|---|---|
| 賃料 | 7.3万円 |
| 管理費 | 3,000円 |
| 敷金/礼金 | 敷2ヶ月 礼1ヶ月 |
| 駐車場 | なし |
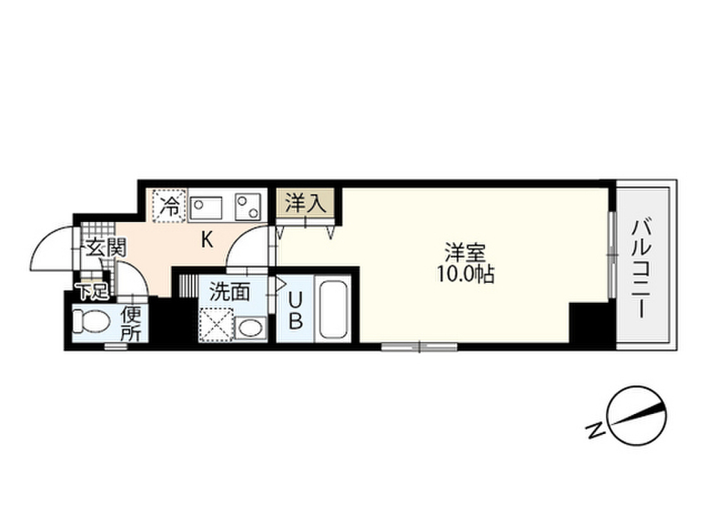
| 住宅保険料 | - | 間取り | 1K |
| 建物構造 | 鉄筋コンクリート(RC)造 |
| 階数 | 12階 |
| 開口向き | 南 |
| 築年月 | 2019年6月 築年数7年 |
| 入居状況/入居日 | 空室/即入可 |
| 取引態様 | 仲介 |
| 情報更新日 | 2021年02月27日 |
| 次回更新日 | 次回更新日は情報更新日の2週間以内 |
| YWコード | YW-123599 |
| CMコード | 922555-1207 |
設備
オートロック
バストイレ別
独立洗面台
ペット相談可
エアコン
室内洗濯機置き場
洗浄便座
宅配ボックス
| 洗面・バス・トイレ | シャンプードレッサー、シャワー、浴室乾燥機、シャワー付きトイレ、室内洗濯機置場、バストイレ別、トイレ、洗面所独立 |
|---|---|
| キッチン | ガスコンロ可、システムキッチン |
| セキュリティ | オートロック、TVドアホン、宅配BOX、防犯カメラ |
| 情報設備・回線 | インターネット光回線 |
| 部屋の特徴 | バルコニー、南向き、全居室フローリング |
| 収納 | クローゼット |
| 冷暖房 | エアコン |
| 共用部 | エレベーター、駐輪場 |
| その他 | 都市ガス、収納スペース、2口コンロ、2階以上 |
周辺環境
- ショッピングセンターまで12分
- スーパーまで5分
- コンビニまで3分
- ドラッグストアまで5分
- 小学校まで3分
取扱店舗

お気軽に問い合わせください!
この物件のお問い合わせ番号:YW-123599
この物件をシェアする

























メールで送る
360°パノラマビュー
別ウィンドウで見る